Résumé
- 99 m2
Descriptif du bien
Référence du bien : COUBLEVIE
Dans un cadre privilégié Batissimo vous propose votre villa neuve personnalisable situé dans un environnement calme avec une vue sur la Chartreuse et à 2 pas du centre de Coublevie et de Voiron.
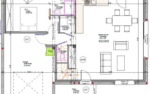
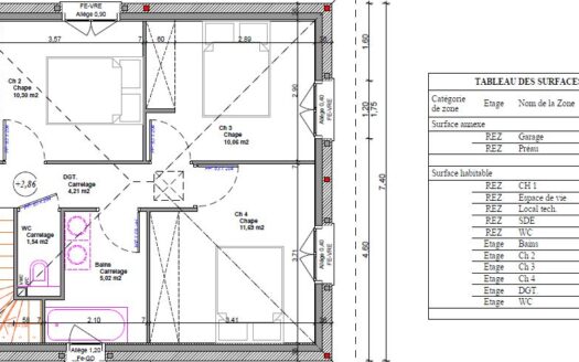
Cette villa est composé d’un vaste séjour, de 4 chambres dont une suite parentale en rez de chaussée, une salle d’eau, une salle de bains, 2 toilettes, un cellier et garage de 21 m2.L’ensemble sur un terrain plat et en partie clos d’une surface de 400 m2.
Agence HARMONIE CONCEPTION BATISSIMO VOREPPE. Terrain proposé avec notre partenaire foncier selon disponibilités et autorisation de publicité. Hors droit d’enregistrement et frais de notaire et VRD. Maison proposée, avec un contrat de construction de maison individuelle, dans le cadre de la loi du 19/12/1990, INCLUANT les branchements, les VRD et hors, papiers peints, peintures, revêtement de sol dans les chambres, qui sont chiffrés dans les travaux qui restent à charge du client. Tarif modifiable sans préavis, hors adaptation selon étude de sol à charge client). Photo Non contractuelle.


















