Résumé
- 5 Pièces
- 4 Chambres
- 120 m2
Descriptif du bien
Référence du bien : 260326-162825
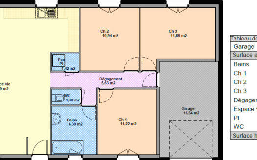
Découvrez ce magnifique projet de maison individuelle à étage, offrant une surface habitable de 120 m², accompagnée d’un garage de 20 m², le tout implanté sur une belle parcelle de 646 m².
Un emplacement privilégié :
Située sur la commune de Saint-Jean-de-Moirans, cette maison bénéficie d’un environnement calme tout en étant proche de toutes les commodités : commerces, écoles, transports et accès rapides aux axes principaux.
Idéal pour une famille souhaitant allier tranquillité et praticité au quotidien.
Agence HARMONIE CONCEPTION BATISSIMO VOREPPE. Terrain proposé avec notre partenaire foncier selon disponibilités et autorisation de publicité. Hors droit d’enregistrement et frais de notaire. Maison proposée, avec un contrat de construction de maison individuelle, dans le cadre de la loi du 19/12/1990, (Papiers peints, peintures, revêtement de sol dans les chambres, qui sont chiffrés dans les travaux qui restent à charge du client. Tarif modifiable sans préavis, Hors raccordements interne et externe.











